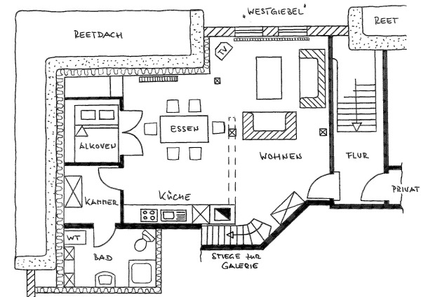
Grundriss Unten